Apartments Trogir 1
REF: HR13/25Description
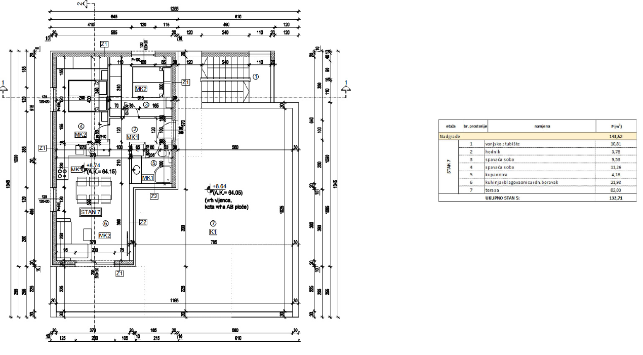
Residential complex consisting of six residential buildings, each of which consists of six or seven apartments. BUILDING 4 – APARTMENTS AVAILABLE Apartment on the second floor S6 ( 64.10 m2 ) – EUR 180,000 It consists of a hallway, living room with kitchen and dining area, bedroom, bathroom with toilet and terrace. The total interior area of the apartment is 53.39 m2, and the terrace area is 10.71 m2. It has two outdoor parking spaces. Orientation: south Apartment on the third floor of S7 ( 132 m2 ) – EUR 240,000 The apartment consists of a hallway, living room with kitchen and dining area, two bedrooms, bathroom with toilet and roof terrace. The total interior area of the apartment is 50.68 m2, the terrace is 82 m2 and the exterior staircase is 10.81 m2. It has two outdoor parking spaces. Orientation: south BUILDING 6 – AVAILABLE APARTMENTS Apartment on the second floor of S5 ( 68.71 m2 + 70 m2 ) – EUR 255,000 The apartment consists of a hallway, two bedrooms, a bathroom with a toilet, a living room with a kitchen and a dining room, and a spacious terrace facing south. The total interior area is 58.63 m2, and the terrace is 10.08 m2. It has two outdoor parking spaces and a roof terrace of about 70 sqm. Apartment on the second floor of S6 ( 64.74 sqm + 70 sqm) – EUR 255,000 The apartment consists of a hallway, two bedrooms, a bathroom with toilet, a living room with kitchen and dining area and a spacious terrace on the south side. The total interior area is 53.86 m2, and the terrace is 10.88 m2. It has two outdoor parking spaces and a roof terrace of about 70 sqm. _______________________________________________ The sale is provided on a turnkey basis, which includes the installation of ceramics and underfloor panels worth up to EUR 25/m2, interior doors worth up to EUR 350, bathroom fittings worth up to EUR 1,200, high-quality PVC joinery with roller blinds and mosquito nets, electric roller shutters, underfloor heating in the bathroom and air conditioning.





