Вилла с видом на озеро и горы
REF: MCA005Описание
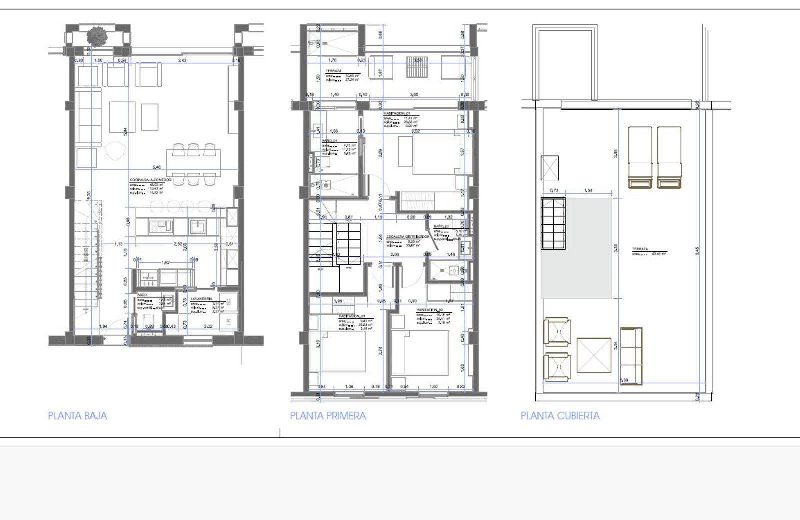
- Презентация проекта
Xiprers – это эксклюзивная урбанизация из 20 односемейных домов, расположенная в Алькудии, Майорка, всего в 50 метрах от пляжа Муро и 12 домов с видом на озеро Эсперанса. Спроектированный для максимального комфорта и элегантности, этот проект сочетает в себе современную архитектуру с традиционными майоркинскими материалами, создавая уникальное и гармоничное жилое пространство.
Основные характеристики:
✔ Отличное расположение рядом с пляжем и озером.
✔ Современный дизайн с использованием высококачественных материалов.
✔ Общий бассейн и зеленые зоны с местными растениями.
✔ Частные террасы и просторные открытые площадки.
✔ Парковочные места в каждом доме.
- Дизайн и строительные материалы
Архитектурный дизайн Xiprers сочетает в себе традиционные майоркинские элементы и современный подход.
Внешние материалы:
- Деревянные окна “Mallorquina”, вдохновленные местными традициями, обеспечивают защиту от солнца и естественную вентиляцию.
- Камень Marés, знаковый материал Майорки, использованный, в частности, в Кафедральном соборе Пальмы и других исторических зданиях.
- Встроенное линейное освещение и алюминиевые детали, подчеркивающие современную эстетику.
Внутренняя отделка:
- Полы и облицовка: керамогранит Atlas Plan Boost Mix Pearl и Atlas Plan Boost Stone Ivory.
- Двери и мебель: дуб или матовый лак Ral 9010.
- Кухня: полностью оборудована бытовой техникой Siemens.
- Высококачественная сантехника: Раковины от Roca и Porcelanosa.
- Фурнитура: Радиаторы Tres и Porcelanosa из нержавеющей стали.
- Ландшафтный дизайн и зеленые зоны
Xiprers окружены растениями местных майоркинских видов, спроектированными таким образом, чтобы интегрироваться в окружающую природу.
🌿 Текущие виды:
✔ Сосны и оливы, типичные для Средиземноморья.
✔ Пальмы, балеарский можжевельник и розмарин, добавляющие цвет и естественный аромат.
✔ Орхидея из Прата и Альхели-де-Мар, охраняемые, местные виды.
- Наличие и цены
| Единица | Блок | Цена (€) | Доступность |
|---|---|---|---|
| U1 Arta-Xiprers | Блок 1 | 790.000 | Бесплатно |
| U2 | Блок 1 | 690.000 | Бесплатно |
| U3 | Блок 1 | 690.000 | Бесплатно |
| U4 | Блок 1 | 740.000 | Бесплатно |
| U5 Центральный | Блок 2 | 740.000 | Бесплатно |
| U6 | Блок 2 | 690.000 | Бесплатно |
| U7 | Блок 2 | 690.000 | Бесплатно |
| U8 | Блок 2 | 890.000 | Бесплатно |
| U9 Лаго – Канал | Блок 3 | 890.000 | Зарезервировано |
| U10 | Блок 3 | 840.000 | Свободно |
| U11 | Блок 3 | 840.000 | Бесплатно |
| U12 | Блок 3 | 890.000 | Бесплатно |
| U13 | Блок 4 | 890.000 | Бесплатно |
| U14 | Блок 4 | 840.000 | Бесплатно |
| U15 | Блок 4 | 840.000 | Бесплатно |
| U16 | Блок 4 | 890.000 | Зарезервировано |
| U17 | Блок 5 | 840.000 | Свободный |
| U18 | Блок 5 | 840.000 | Бесплатно |
| U19 | Блок 5 | 840.000 | Зарезервировано |
| U20 Piso Único | Блок 5 | 990.000 | Свободно |
📌 Примечание: Зарезервированные единицы подлежат подтверждению покупки.
- План оплаты
Застройщик предлагает два плана оплаты, в зависимости от фазы развития:
Фаза 1 (Здания на продвинутой стадии строительства)
1️⃣ Бронирование: €10 000
2️⃣ По истечении 30 дней: 40% от стоимости + НДС
3️⃣ 55% после принятия и подписания нотариального акта
4️⃣ 5% по завершении Фазы 2
Фаза 2 (строящиеся блоки)
1️⃣ Бронирование: € 10 000
2️⃣ По истечении 30 дней: 20% от стоимости + НДС
3️⃣ 20% после закрытия трех блоков
4️⃣ 60% после сдачи и подписания нотариального акта










