ID: 2204-115-10-115
REF: N6034
598 000

Villa Neubau

Betten:3 Bäder:2 Fläche:433m2 Pool Entfernung zum Strand: 6000m

Beschreibung

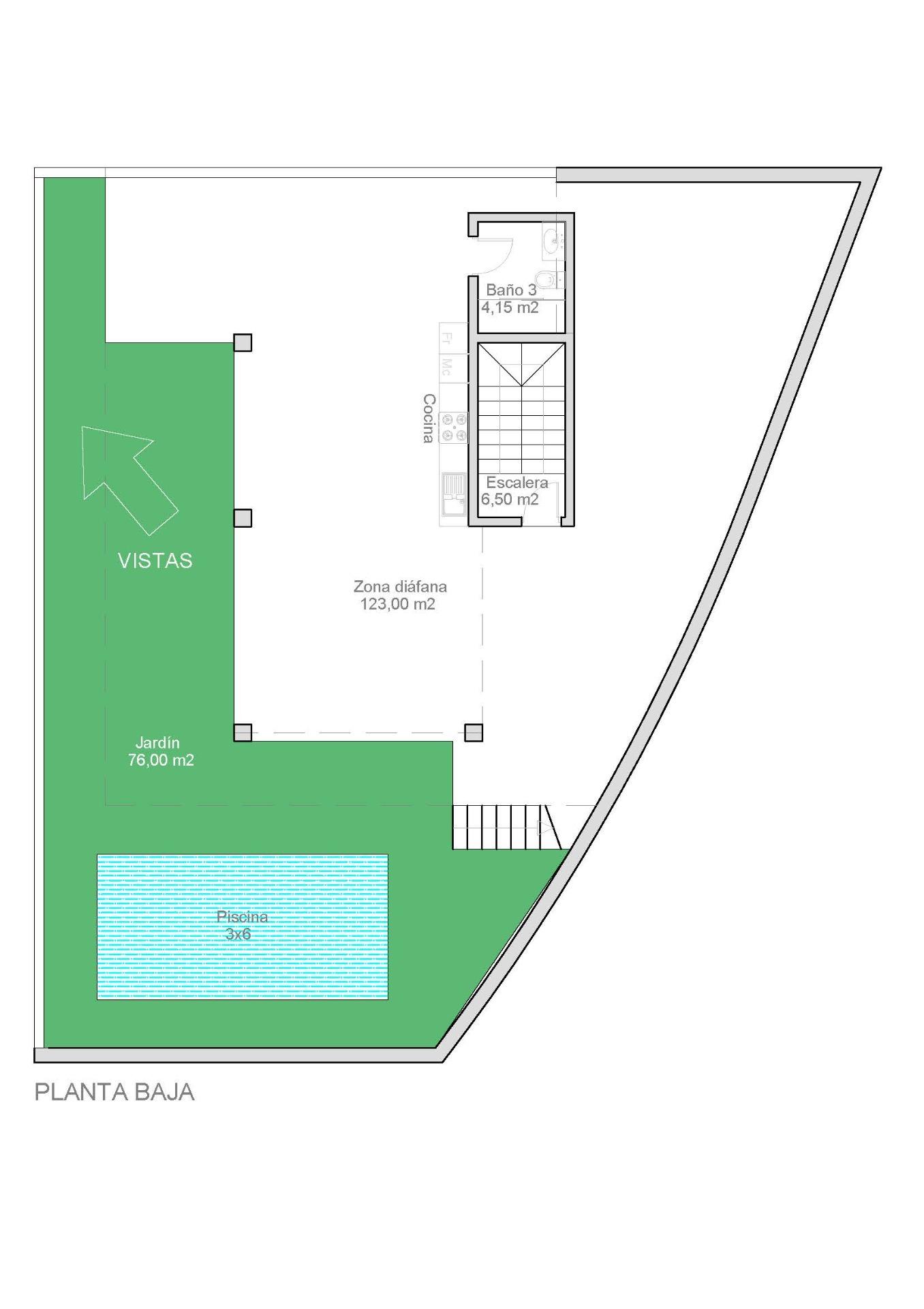
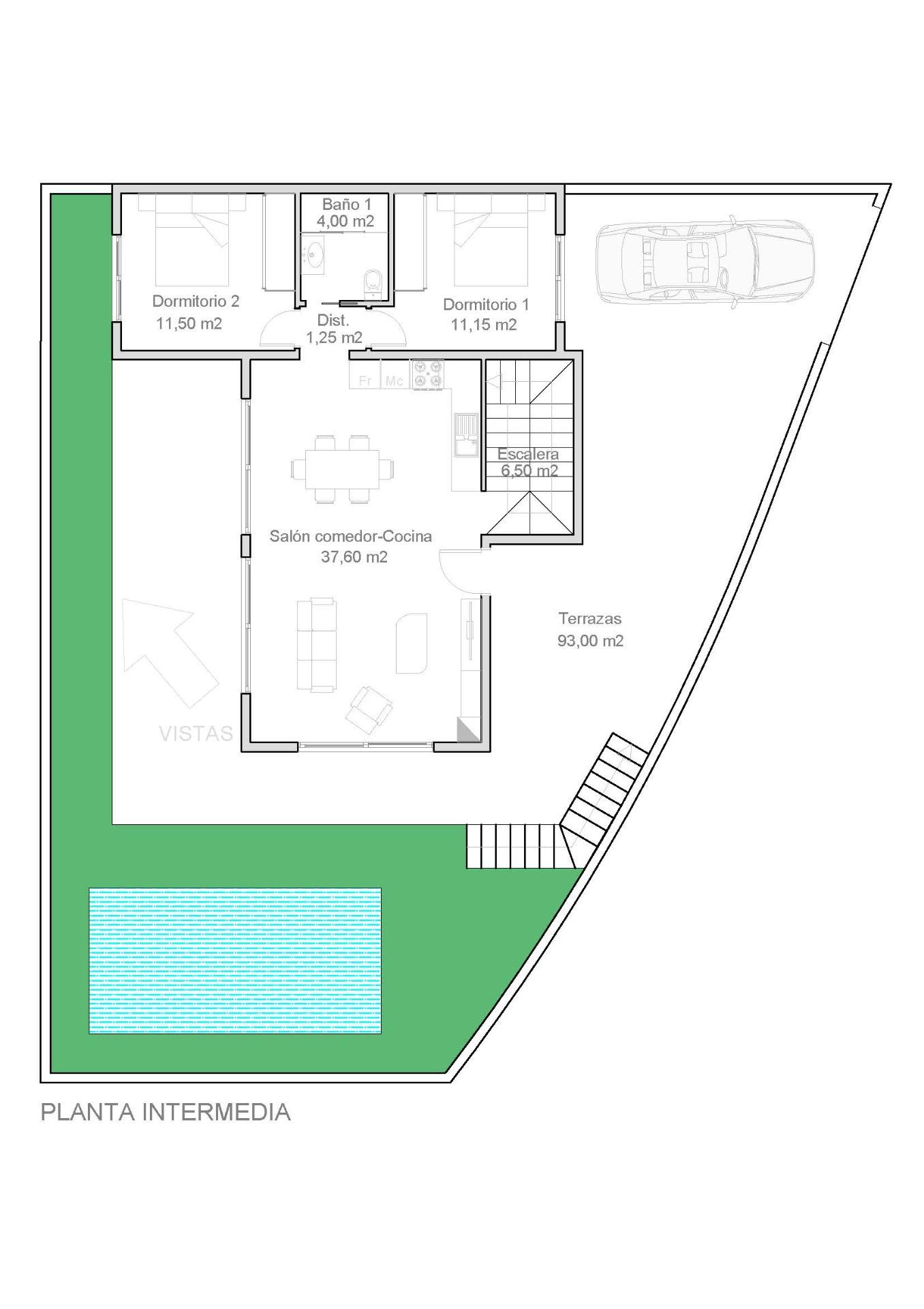
SCHÖNE VILLA MIT BLICK AUF DEN GOLFPLATZ “LA MARQUESA”! Diese schöne Villa, 50 Meter vom Golfplatz La Marquesa entfernt, bietet nicht nur einen schönen und hellen Blick und die Ruhe in einer ruhigen Umgebung, sondern liegt auch nur wenige Meter von einem Einkaufszentrum mit Geschäften, Supermärkten, Bars und internationalen Restaurants entfernt. Nur 5 Minuten von der Stadt Rojales mit all ihren Dienstleistungen und 15 Minuten von den spektakulären Stränden mit der blauen Flagge von Guardamar del Segura entfernt. Der Flughafen Alicante-Elche ist 35 Minuten entfernt. Die Villa hat eine Grundstücksfläche von 335 m2 und eine bebaute Fläche von 433 m2, verteilt auf 3 Etagen, von denen eine 126 m2 halb unterkellert ist. Die Villa verfügt über 3 Schlafzimmer und 2 Bäder. Ein 3×6 m großer Swimmingpool und große Terrassen im Garten und Poolbereich ermöglichen es Ihnen, das ganze Jahr über die Sonne und das Klima der Costa Blanca zu genießen. Wohnen Sie in einer großen, modernen Villa und genießen Sie den Golfplatz, den Strand, das Klima und den mediterranen Lebensstil!


Fläche:

Baujahr:433m2 Grundstück:250m2 Nutzfläche:229m2 Terrasse:144m2

Energieeffizienzklasse:

Energieverbrauch:A Energieemission:A

Merkmale

Private Pool
Garden
Gated
Terrace: 144 Msq.
Solarium: Yes
BBQ
Number of Parking Spaces: 1
Beach: 6000 Meters
Near Golf / Golf Resort Property
Near Schools
Near Commercial Center
Location: Urbanisation
Useable Build Space: 237 Msq.
Air Conditioning: Pre-Installed
Under-Build / Basement

Standort


Spain / Alicante / Rojales
Golf La Marquesa (Ciudad Quesada)
Entfernung zum Strand:6000m


Interessiert an dieser Immobilie?

Enter your phone number - we will call you back within an hour, or choose the nearest partner in your area to guide you through the entire property buying process.