Moderne, neu gebaute Villa am Meer in Javea
ID: 2712-115-10-115REF: N9327
Beschreibung
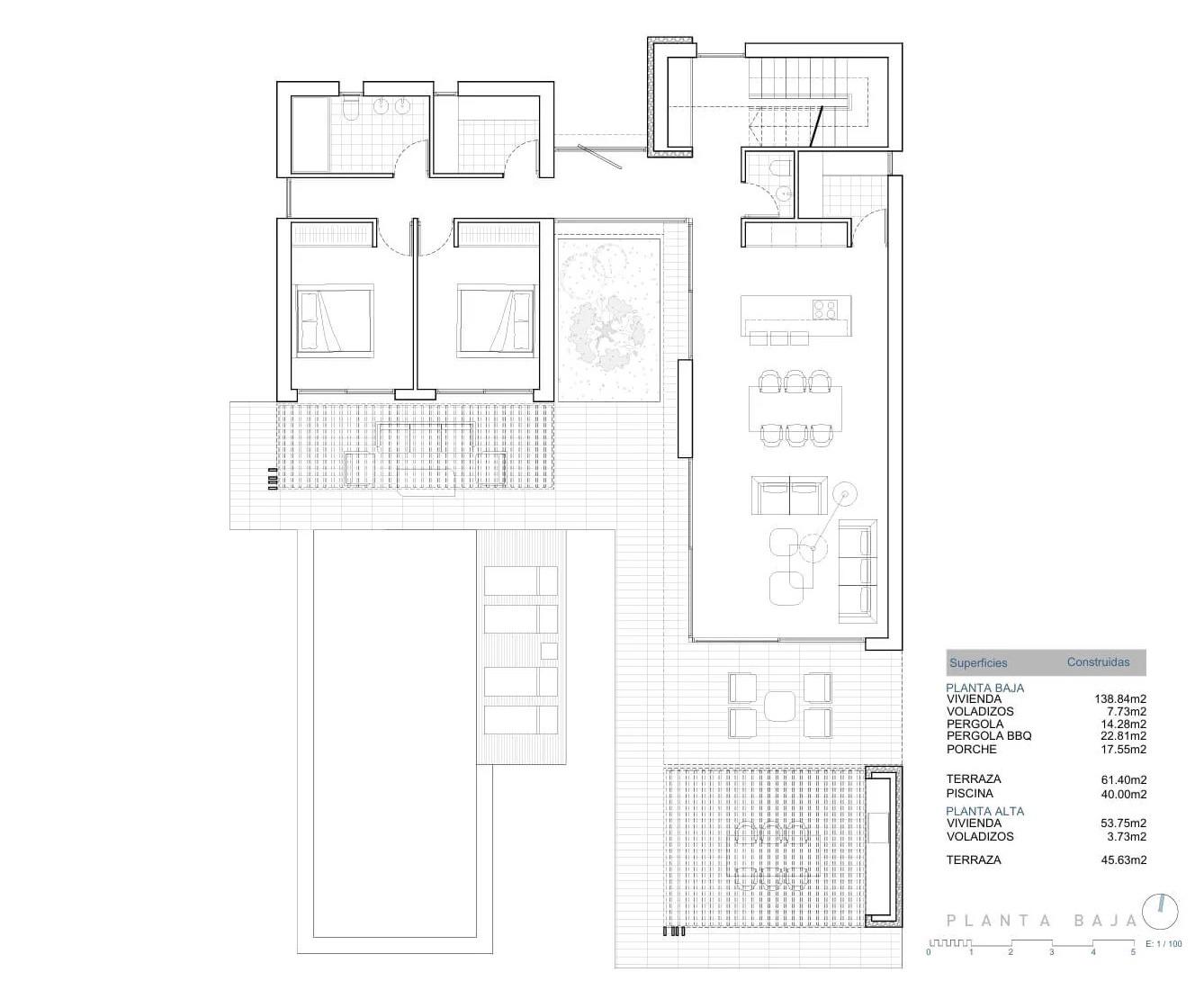
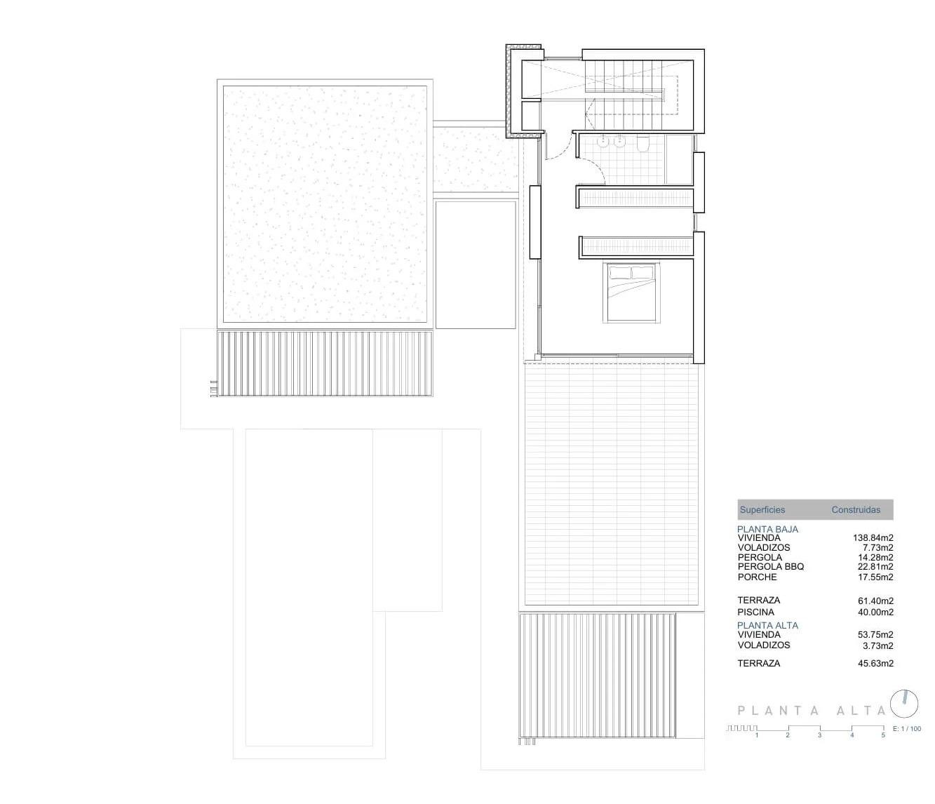
Moderne, neu gebaute Villa am Meer in Javea Exklusives Wohnen im mediterranen Stil in Javea Entdecken Sie diese wunderschöne, moderne Villa in einer der begehrtesten und ruhigsten Gegenden von Javea, nur 800 Meter vom Meer entfernt. Inmitten von Pinienbäumen, in der Nähe der berühmten Cala de la Barraca und Cala del Portixol, bietet diese Residenz einen einzigartigen Lebensstil, umgeben von Natur und der Schönheit der Küste. Javea, an der Costa Blanca zwischen Alicante und Valencia gelegen, ist bekannt für sein kristallklares Wasser, seine charmante Altstadt und sein ganzjährig mildes Klima, das es zu einem der begehrtesten Reiseziele im Mittelmeerraum macht.Elegantes Design und helle, offene Räume Die Villa wurde mit Blick auf Komfort und Stil entworfen und zeichnet sich durch eine moderne Architektur mit weichen Linien, großen Fenstern und einer nahtlosen Integration von Innen und Außen aus. Natürliches Licht dringt in jeden Winkel und schafft eine warme und einladende Atmosphäre, ideal zum Wohnen und Unterhalten.Die Villa erstreckt sich über zwei Etagen und verfügt über einen offenen Wohn- und Essbereich mit direktem Zugang zu den Terrassen und dem Pool. Voll möblierte, offene Küche, 3 Schlafzimmer, 2 Bäder und 1 Gäste-WCWaschküche und Speisekammer Privater Garten, Terrassen und Pool mit Sommerküche Private Master-Suite und Outdoor-Lifestyle Im Erdgeschoss befinden sich zwei Schlafzimmer, ein Badezimmer und großzügige Sozialräume. Das Hauptschlafzimmer im Obergeschoss ist eine private Oase der Ruhe mit einem eigenen Bad, einem geräumigen Ankleidezimmer und einer 45 m2 großen Terrasse, die ideal ist, um Sonnenaufgänge zu bewundern und die mediterrane Brise zu genießen. Der Außenbereich wurde mit dem Gedanken an Entspannung gestaltet und umfasst einen privaten Swimmingpool, Sonnenterrassen und eine üppige Umgebung für Ruhe und Privatsphäre. Perfekt an der nördlichen Costa Blanca gelegen, bietet Javea einen einzigartigen Lebensstil mit schönen Stränden, Wanderwegen, Yachthäfen, Golfplätzen und exquisiten Restaurants. Die Stadt ist 92 km von Alicante und 105 km von Valencia entfernt.Entfernungen Strand und Cala del Portixol: 0,8 km Javea Hafen und Jachthafen: 8 km Javea Golf Club: 10 km Flughafen Alicante: 100 km Valencia Flughafen: 125 km Ihr mediterranes Zuhause erwartet Sie. Egal ob Sie einen dauerhaften Wohnsitz, ein luxuriöses Urlaubsziel oder eine erstklassige Investition suchen, diese Villa bietet Privatsphäre, Komfort und eine außergewöhnliche Lage direkt am Meer. Kontaktieren Sie uns noch heute für weitere Informationen oder um eine Besichtigung dieser exklusiven, modernen Immobilie in Javea zu vereinbaren.
Fläche:
Energieeffizienzklasse:
Merkmale
Garden
Gated
Terrace: 105 Msq.
Solarium: Yes
Space
Number of Parking Spaces: 1
Beach: 800 Meters
Near Schools
Near Commercial Center
Location: Coastal
Useable Build Space: 160 Msq.
Air Conditioning: Pre-Installed
Under-Build / Basement
Double Bedrooms: 3
Standort
Entfernung zum Strand:800m





