Проект "Пакостан
REF: HR/PAKO/1Описание
НОВОЕ ЗДАНИЕ – ПАКОШТАНЕ Представляем новый проект современного жилого дома на 4 квартиры, расположенного в тихой части Пакоштане, идеального для проживания или туризма. Благодаря различным планировкам каждый найдет квартиру для себя, с подходящей планировкой.
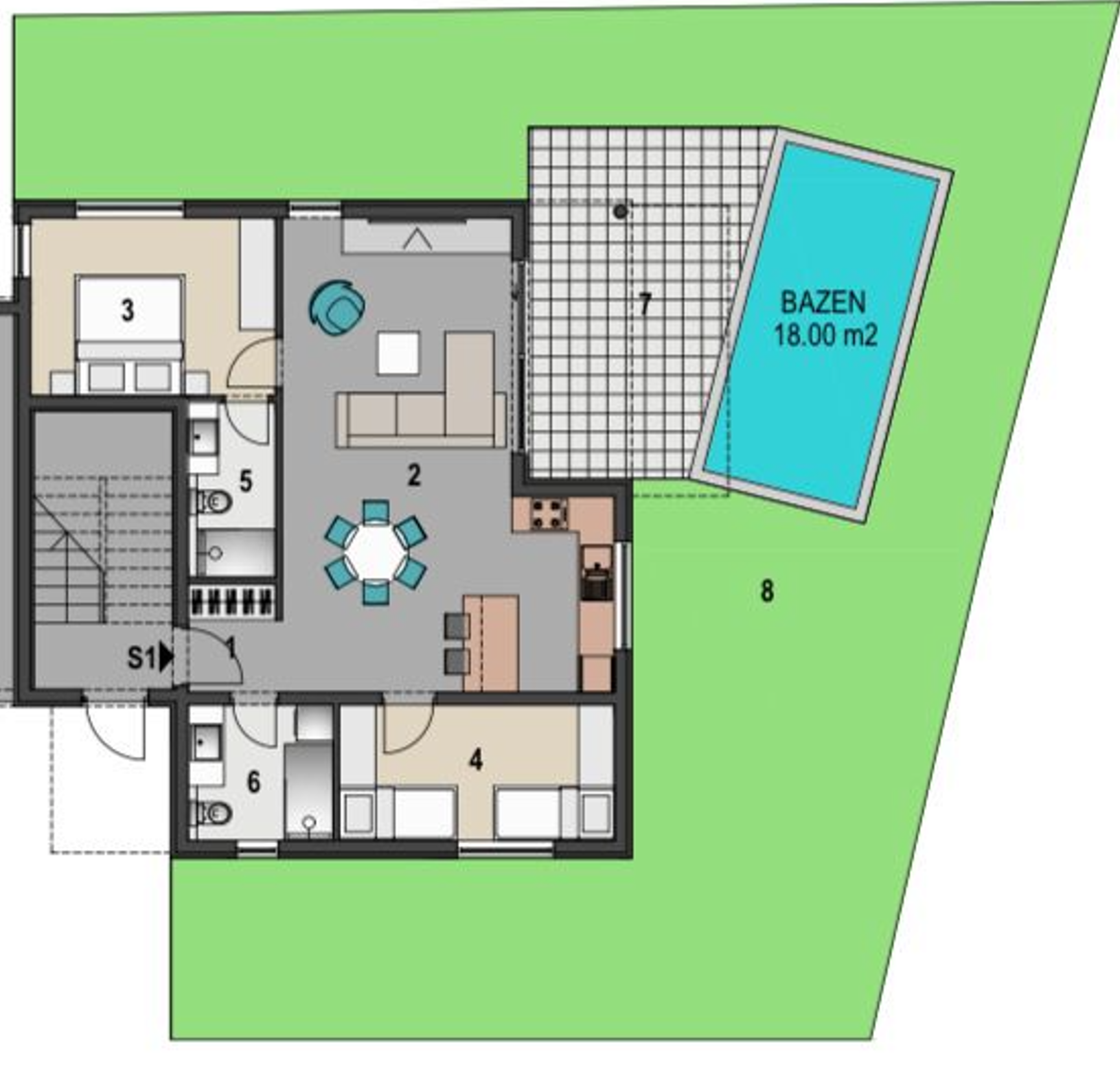
ДОСТУПНЫЕ КВАРТИРЫ S1 – РАЗМЕЩЕНИЕ: – прихожая с гардеробной – 2,70м2 – спальня с возможностью установки 2 отдельных кроватей – 10,20м2 – общая ванная комната – 5,30м2 – главная спальня с двуспальной кроватью и отдельной ванной комнатой – 11,90м2 + 4,00м2 – гостиная с кухней и столовой – 35,30м2 – из гостиной выход на террасу и большой сад с бассейном (126,00м2) – терраса – 19,60м2 S3 – РАЗМЕЩЕНИЕ:
Планировка квартиры: 1-й этаж: – прихожая с гардеробной – 4,10м2 – общая ванная комната – 5,00м2 – гостиная с кухней и обеденной зоной – 35,80м2 – балкон – 8,80м2 – лестница – 7,40м2 2-й этаж:
– прихожая + лестница – 10,90 м2 – общая ванная комната – 4,40 м2 – спальня с детскими кроватями – 10,20 м2 – спальня с двуспальной кроватью и выходом на собственный балкон – 10,60 м2 + балкон 8,80 м2 – спальня с двуспальной кроватью и собственной ванной комнатой – 12,70 м2 + ванная комната 4,30 м2 3-й этаж – терраса на крыше – 48м2 S3 – РАЗМЕЩЕНИЕ:
1-й этаж: – прихожая с гардеробной – 4,10 м2 – общая ванная комната – 5,00 м2 – гостиная с кухней и обеденной зоной – 35,80 м2 – балкон – 8,80 м2 – лестница – 7,40 м2 2-й этаж:
– прихожая + лестница – 10,90 м2 – общая ванная комната – 4,40 м2 – спальня с детскими кроватями – 10,20 м2 – спальня с двуспальной кроватью и выходом на собственный балкон – 10,60 м2 + балкон 8,80 м2 – спальня с двуспальной кроватью и собственной ванной комнатой – 12,70 м2 + ванная комната 4,30 м2 S4 – РАЗВИТИЕ: 2-й этаж:
– прихожая с гардеробом – 6,30 м2 – маленькая спальня – 7,10 м2 – общая ванная комната – 4,70 м2 – главная спальня с двуспальной кроватью – 9,90 м2 – гостиная с кухней и столовой – 23,90м2 – терраса 1 – 9,40 м2 – терраса 2 – 13,70 м2 – терраса на крыше – 55,50 м2 СПЕЦИФИКАЦИИ И ОБОРУДОВАНИЕ Подогрев полов в ванных комнатах (с возможностью установки во всей квартире по договоренности и цене) Электрические жалюзи во всей квартире Кондиционеры во всех комнатах – Midea Антрацитового цвета ПВХ столярка Rehau Synego 85 – трехслойный стеклопакет Крупноформатная керамическая плитка 1 класса – импортирована из Италии Паркетный пол по запросу ПАРКОВКА Внешнее парковочное место: 7500 € Парковочное место в гараже: 15000 € *В квартире S3 в стоимость включены как внешние, так и гаражные парковочные места! Начало строительства: осень 2025 года Завершение: к концу 2026 года Расположение: тихая улица в центре Пакоштане, в 450 м от моря и набережной, рядом со всеми удобствами. Идеально подходит для семьи, отдыха или инвестиций!
ДОПОЛНИТЕЛЬНЫЕ ПРЕИМУЩЕСТВА И АКТРИБУТЫ – Небольшое жилое здание – всего 4 квартиры: Спокойствие, уединение и ощущение эксклюзивности – Светлые, просторные помещения с большим количеством естественного света – Современная архитектура и высокое качество строительства с вниманием к каждой детали – Возможность персонализировать интерьер – паркетный пол, цвета, декор в соответствии с пожеланиями покупателя во время строительства – Энергоэффективное здание – высокий уровень изоляции, тройное остекление, энергоэффективные системы отопления и охлаждения – Идеально подходит для краткосрочной или долгосрочной аренды – отличная заполняемость в высокий сезон – Надежный инвестор с предыдущими рекомендациями и прозрачный процесс покупки Для получения дополнительной информации, просмотра, бронирования, свяжитесь с нами прямо сейчас!
Площадь:
Энергетический класс:
Варианты недвижимости:
| Тип | Кресла | ванны | Область | Используемая зона | Плот | Террасы | Цены |
|---|---|---|---|---|---|---|---|
| S2 | 2 | 1 | 77m2 | 74.40m2 | 10.60m2 | 259999 EUR | |
| S4 | 2 | 1 | 130m2 | 71.80m2 | 78.60m2 | 249000 EUR | |
| S1 | 2 | 2 | 215m2 | 91.80m2 | 126m2 | 319999 EUR | |
| S3 | 3 | 3 | 171m2 | 126.20m2 | 65.60m2 | 439997 EUR |













