Отремонтированный жилой комплекс в Ломас-де-Кабо-Роиг - отремонтированные квартиры
ID: 2236-115-10-115REF: N8678
Описание
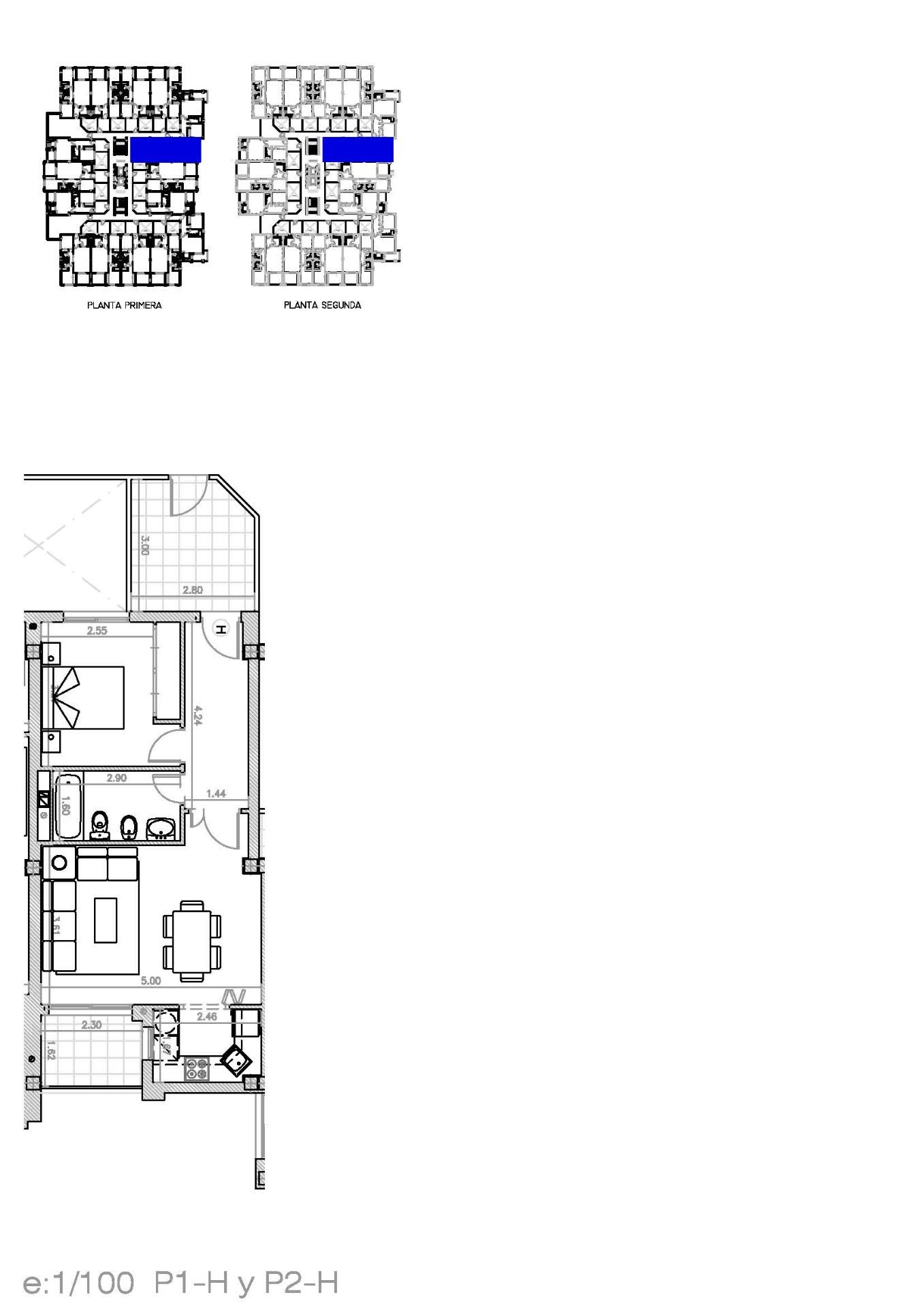
Отремонтированный жилой комплекс в Ломас-де-Кабо-Роиг – отремонтированные квартиры Апартаменты в отличном месте Откройте для себя эту уникальную возможность стать владельцем отремонтированной квартиры в Ломас-де-Кабо-Роиг, востребованном районе Ориуэла Коста. Первоначально построенный в 2008 году, этот жилой комплекс находится в процессе обновления некоторых единиц и будет завершен в июне 2025 года. Выставочный дом доступен для просмотра, что позволит вам воочию убедиться в высоком качестве отделки. Варианты недвижимости на любой вкус В комплексе предлагается 27 отремонтированных квартир с различными планировками: квартиры с 1 и 2 спальнями, идеально подходящие для отдыха или инвестиций.Квартиры на первом этаже с частными садами, идеальными для жизни на свежем воздухе. Квартиры на среднем этаже с просторными террасами, идеальными для наслаждения средиземноморским климатом. Пентхаусы с частными соляриями, предлагающими открытые виды и максимальное уединение.В каждом доме установлены душевые шторки в ванных комнатах и полностью оборудованные кухни с бытовой техникой, что позволяет покупателям получить готовое решение. Эксклюзивные удобства в комплексе Жилой комплекс был спроектирован с учетом комфорта и отдыха: общий бассейн, окруженный красивыми ландшафтными садами.Лифт для легкого доступа на все этажи. Дополнительные места на подземной парковке предоставляются за дополнительную плату. Непревзойденное расположение в Ориуэла Коста Ломас-де-Кабо-Ройг – это престижный жилой район, расположенный всего в 2 км от побережья Кабо-Ройг, где находятся одни из самых красивых пляжей Ориуэла Коста. Район имеет хорошее транспортное сообщение и предлагает широкий спектр услуг, включая магазины, рестораны, супермаркеты и торговые центры. Расстояния до основных достопримечательностей: пляжи Кабо Роиг и Кампоамор – 5 минут езды. торговый центр Zenia Boulevard – 5 км. поле для гольфа Villamartín – 4 км.Аэропорт Аликанте – 30 минут езды. Аэропорт Мурсия-Корвера – 1 час езды. Разумная инвестиция на побережье Коста Бланка Благодаря отличному расположению, полностью отремонтированным квартирам и первоклассным удобствам, эта инвестиция является идеальной возможностью для вложения средств, проведения отпуска или постоянного проживания. Не упустите уникальную возможность стать владельцем дома в одном из самых престижных районов Коста-Бланки по непревзойденной цене. Свяжитесь с нами сегодня, чтобы получить дополнительную информацию или договориться о визите!
Площадь:
Энергетический класс:
Характеристики
Communal Pool
Gated
Terrace: 12 Msq.
Parking
Beach: 2000 Meters
Near Trees
Near Schools
Near Commercial Center
Location: Coastal, Urbanisation
Useable Build Space: 45 Msq.
Double Bedrooms: 1
Локация
Расстояние до пляжа:2000m
















