Современная вилла с панорамным видом на море в Ла Фустера, Бенисса Коста
ID: 2699-115-10-115REF: N9313
Описание
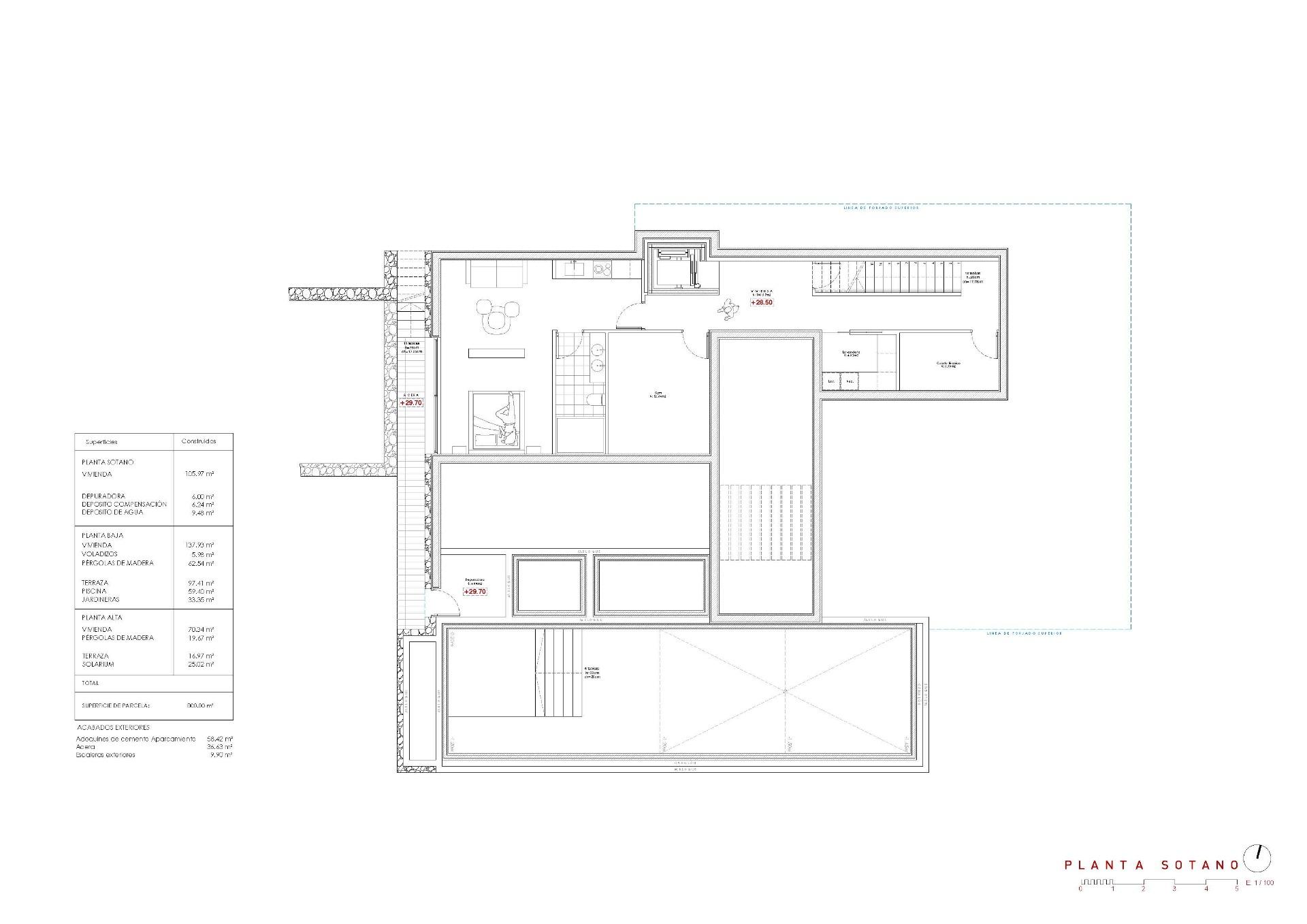
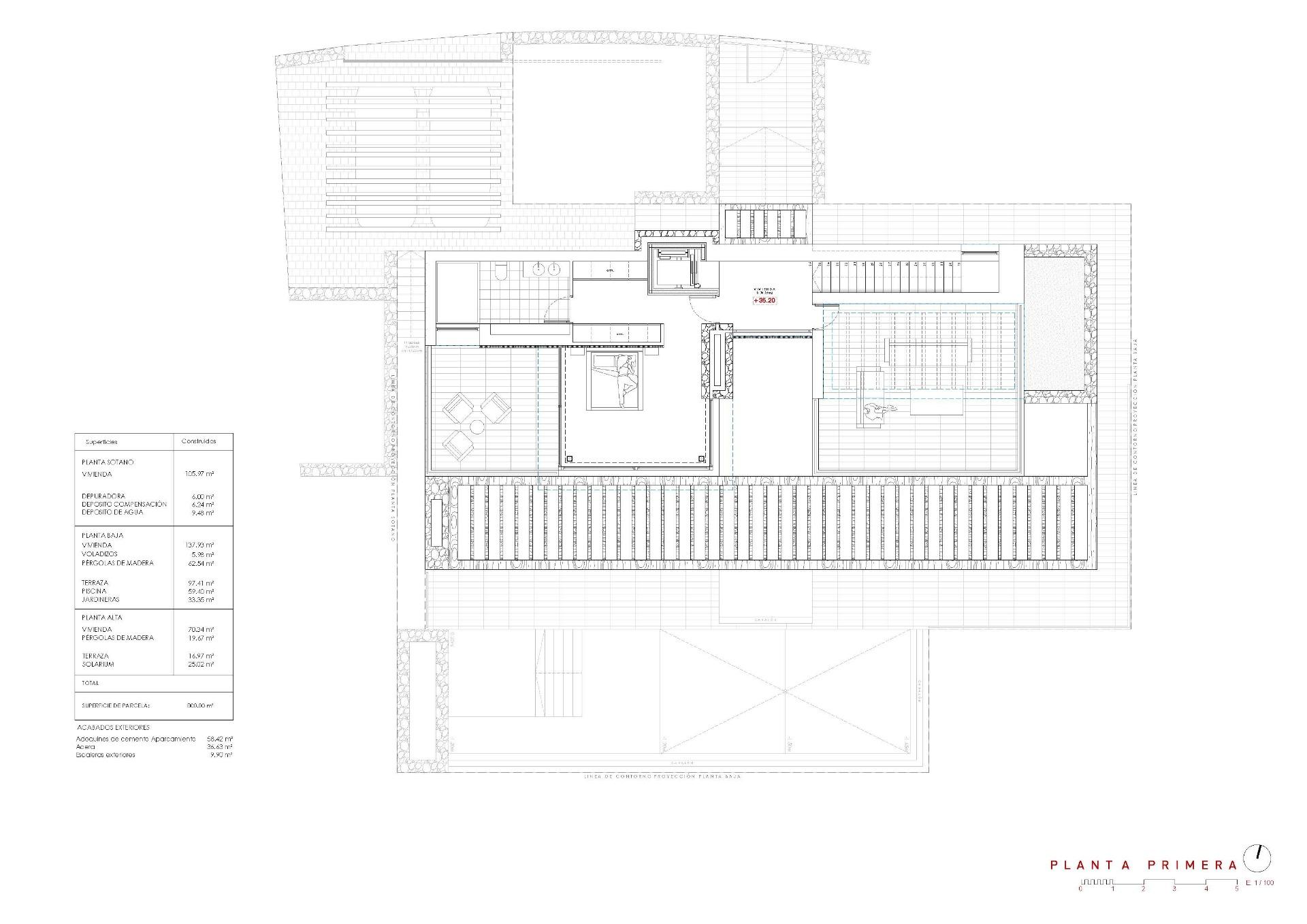
Современная вилла с панорамным видом на море в Ла Фустера, Бенисса Коста Эта эксклюзивная, недавно построенная вилла, спроектированная известным архитектором и разработанная местным застройщиком с более чем 20-летним опытом, расположена на участке площадью 800 м² всего в нескольких шагах от пляжа Ла Фустера. Сочетая средиземноморскую теплоту с современной элегантностью, архитектура сочетает натуральный камень, дерево и мягкие нейтральные тона, органично вписываясь в прибрежный ландшафт.Вилла общей площадью 716 м² расположена на трех уровнях – подвале, первом и втором этажах – и предлагает идеальный баланс функциональности, дизайна и комфорта. Первый этаж Нижний этаж площадью 105,97 м² был спроектирован с учетом практичности и отдыха. Здесь расположены полностью оборудованный тренажерный зал, прачечная и технические помещения, с возможностью адаптации дополнительных помещений под винный погреб, кинотеатр или многофункциональную комнату. Система фильтрации бассейна и резервуары для воды также расположены на этом уровне, обеспечивая эффективное управление всеми техническими установками. Первый этаж Основной уровень площадью 137,93 м² включает в себя светлую, открытую планировку, которая отражает суть средиземноморского образа жизни. Просторная гостиная, столовая и кухня открываются через большие окна от пола до потолка на главную террасу и бассейн без бортиков, создавая невероятную панораму моря, которая определяет характер этого дома. Две спальни с двуспальными кроватями, полностью оборудованная ванная комната и гостевой туалет завершают этот этаж, обеспечивая комфорт и функциональность. Снаружи деревянная беседка обеспечивает тень в открытой гостиной и столовой, окруженной пышными садами, солнечными террасами и безбрежным бассейном площадью 59,40 м², который визуально соединяется с морем. Второй этаж Верхний уровень площадью 70,19 м² отведен под главную спальню – приватное уединение с гардеробной, ванной комнатой и большой частной террасой с захватывающим видом на Средиземное море. Вторая спальня или кабинет завершают этот этаж, который также предоставляет доступ к солярию площадью 25,02 м², идеальному для отдыха на солнце и наслаждения спокойствием окружающей среды.Экстерьер и расположение Расположенный на тихой жилой улице, в окружении современных вилл, этот дом имеет уникальное расположение, всего в 3 минутах ходьбы от пляжа Ла Фустера (150 м), пляжного бара и ресторана Mandala и основных удобств, таких как супермаркеты и местные службы.Спроектированная с акцентом на свет, пространство и плавный переход между внутренним и внешним пространством, эта вилла олицетворяет современный средиземноморский образ жизни – элегантный, расслабляющий и находящийся в идеальной гармонии с захватывающими панорамными видами на море.Приобретите виллу своей мечты в Ла Фустера, Бенисса Коста, и наслаждайтесь средиземноморским стилем жизни с захватывающими дух видами на море и непревзойденным комфортом.
Площадь:
Энергетический класс:
Характеристики
Garden
Gated
Terrace: 157 Msq.
Solarium: Yes
Parking - Space
Number of Parking Spaces: 2
Beach: 150 Meters
Views: Sea
Near Trees
Near Schools
Near Commercial Center
Near Bus Route
Location: Coastal, Urbanisation
Useable Build Space: 290 Msq.
Локация
Расстояние до пляжа:150m















