REF: N8023
Beschreibung
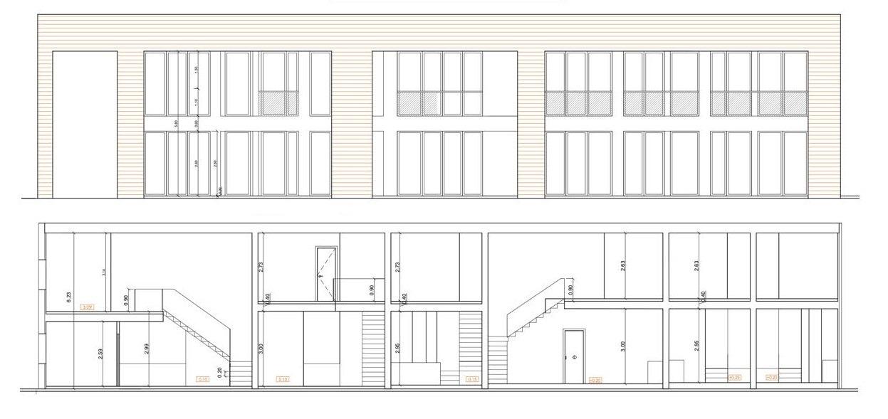
Moderne Loft-Wohnungen im Zentrum von Alicante Exklusive Neubaumaßnahme im Viertel Benalúa Entdecken Sie die einmalige Gelegenheit, eine stilvolle Loft-Wohnung in Benalúa zu erwerben, einem der lebendigsten und am besten angebundenen Viertel von Alicante. Dieses einzigartige Projekt verwandelt sechs stillgelegte Gewerberäume in moderne Wohnlofts und bietet nur 1 km von der Mittelmeerküste entfernt einen modernen urbanen Lebensstil. Benalúa ist bekannt für seine Geschäfte, Cafés, kulturellen Aktivitäten und die Nähe zum Stadtzentrum, was es zu einem begehrten Standort für Bewohner und Investoren macht. Modernes Design im Loft-Stil Jede Wohnung wurde komplett neu gestaltet, um einen frischen, offenen und eleganten Lebensraum zu schaffen. Das Angebot umfasst zweistöckige Lofts mit 1 oder 2 Schlafzimmern und 2 Bädern, alle mit beeindruckenden, doppelhohen Räumen, die für mehr Tageslicht und eine echte Loft-Atmosphäre sorgen. Im ersten Stock gibt es ein Schlafzimmer und ein voll ausgestattetes Badezimmer für Privatsphäre und Komfort. Mit einem unabhängigen Eingang von der Straße und einer privaten Terrasse verbindet jede Wohnung moderne Architektur mit Zweckmäßigkeit. Die hochwertigen Oberflächen, die moderne Aufteilung und die hellen Innenräume machen diese Lofts zu einer ausgezeichneten Wahl für alle, die Stil und Funktionalität suchen. Komfort und Annehmlichkeiten der Gemeinschaft Die Bewohner haben Zugang zu einem Gemeinschaftspool, der sich im Gebäude befindet und an warmen Mittelmeertagen eine entspannende und erfrischende Atmosphäre bietet. Private Terrassen und unabhängige Eingänge sorgen für zusätzlichen Komfort und Exklusivität. Ausgezeichnete Lage in der Nähe der wichtigsten Attraktionen Der Komplex, der sowohl zum Wohnen als auch für Investitionen ideal gelegen ist, befindet sich in der Nähe der wichtigsten Dienstleistungen und Attraktionen: Strand von Alicante: 1 km Renfe-Bahnhof: 0,8 km Einkaufszentrum El Corte Inglés: 0,7 km Justizpalast von Alicante: 0,5 km Flughafen von Alicante: 12 km Jachthafen Alicante und Hafen: 2 km Golfplätze (Alicante Golf): 7 km Das Viertel bietet hervorragende Verkehrsanbindungen, kulturelle Einrichtungen, Grünflächen und einen einfachen Zugang zu den schönen Stränden der Stadt. Eine kluge Investition für einen Lebensstil an der Küste in Alicante Egal, ob Sie auf der Suche nach einem Hauptwohnsitz, einer Ferienimmobilie oder einer Investition mit hohem Vermietungspotenzial sind, diese zweistöckigen Loft-Wohnungen in Benalúa stellen eine einzigartige Gelegenheit in einem der vielversprechendsten Viertel von Alicante dar.Kontaktieren Sie uns noch heute, um Ihr exklusives Loft zu buchen und einen modernen Lebensstil im Herzen von Alicante zu genießen.
Fläche:
Energieeffizienzklasse:
Merkmale
Terrace: 4 Msq.
Beach: 1000 Meters
Near Train Station
Near Schools
Near Commercial Center
Near Bus Route
Location: Coastal, Urbanisation
Useable Build Space: 64 Msq.
Air Conditioning: Pre-Installed
Double Bedrooms: 1
Standort
Entfernung zum Strand:1000m



















